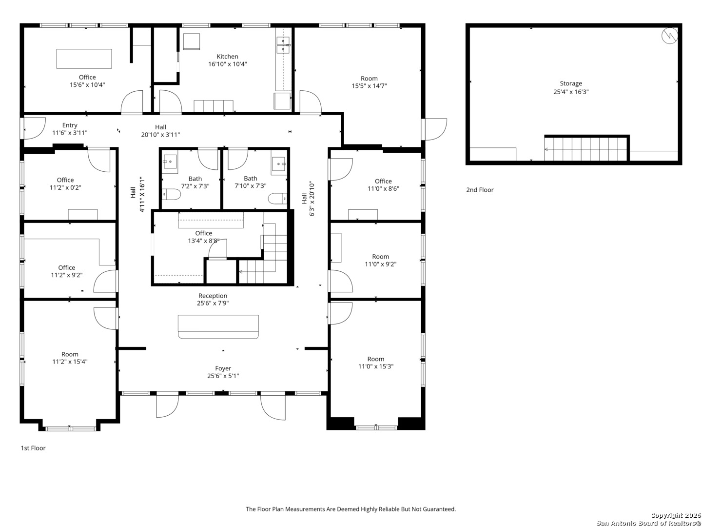
Positioned in the heart of San Antonio's highly sought after Medical District, this 2,708 SF medical office suite at 4230 Gardendale Rd, Unit 3, San Antonio, TX 78229 offers an exceptional opportunity for medical and professional users seeking a turnkey or easily adaptable space. The well designed floor plan features a welcoming reception and waiting area, multiple private offices and exam rooms, dedicated procedure/treatment rooms, restrooms, and a functional breakroom/kitchen area. The layout supports efficient patient flow and operational flexibility, making it ideal for a wide range of medical or dental uses including primary care, specialty practices, imaging, therapy, or outpatient services. Interior finishes include durable flooring, ample natural light, built-in cabinetry, and existing medical infrastructure that can significantly reduce buildout time and cost. The suite also includes additional storage and a second floor storage area, adding valuable functionality rarely found in comparable properties. Located minutes from major hospitals, research facilities, and I-10, Loop 410, and US 281, this property provides excellent accessibility for patients and staff alike. Surrounded by established medical practices, hospitals, and supporting amenities, this location offers strong visibility and long-term value in one of San Antonio's most active healthcare corridors. Property sold "As-is". Buyer and/or buyer's agent responsible for verifying all pertinent information deemed relevant by the prospective buyer, including but not limited to square footage, acreage, utilities, taxes, zoning, permitting, condition, school zones, HOAs, etc.

Listing Tools

Property Details of 4230 Gardendale, Unit 3

Property Details

Map Location

Listed by McKenzie Peek of Phyllis Browning Company

Based on information submitted to LERA MLS as of February 12, 2026 10:07 AM EST . All data is deemed reliable but is not guaranteed accurate by the MLS. All information should be independently reviewed and verified for accuracy. IDX information is provided exclusively for consumers’ personal, noncommercial use and may not be used for any purpose other than to identify prospective properties consumers may be interested in purchasing.

Hi there! How can we help you?

Contact us using the form below or give us a call.

Send Us A Message:

I agree to receive marketing and customer service calls and text messages from Southern Ranch Sales. To opt out, you can reply 'stop' at any time or click the unsubscribe link in the emails. Consent is not a condition of purchase. Msg/data rates may apply. Msg frequency varies. Privacy Policy.

Do not fill in this field:

This site is protected by reCAPTCHA and the Google Privacy Policy and Terms of Service apply.

Hi there! How can we help you?

Contact us using the form below or give us a call.

Send Us A Message:

Do not fill in this field:

This site is protected by reCAPTCHA and the Google Privacy Policy and Terms of Service apply.

Hi there! How can we help you?

Contact us using the form below or give us a call.

Send Us A Message:

Do not fill in this field:

This site is protected by reCAPTCHA and the Google Privacy Policy and Terms of Service apply.

Do not fill in this field:

This site is protected by reCAPTCHA and the Google Privacy Policy and Terms of Service apply.

Do not fill in this field:

This site is protected by reCAPTCHA and the Google Privacy Policy and Terms of Service apply.

Do not fill in this field:

This site is protected by reCAPTCHA and the Google Privacy Policy and Terms of Service apply.

$

Do not fill in this field:

This site is protected by reCAPTCHA and the Google Privacy Policy and Terms of Service apply.